Agence Kahûte

Retour aux biens

  • Appartement
  • Vente

T3 de 58m2 en rez-de-jardin avec 166 m² d’extérieur ? Les Terrasses 1930, Champagne-au-Mont-d’Or

CHAMPAGNE AU MONT D OR
370 000€

Description

Nouveauté KAHUTE

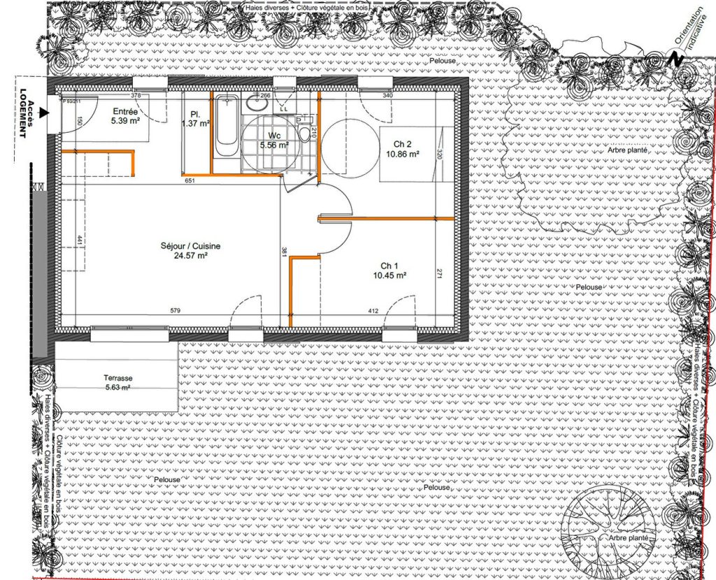
Situé en rez-de-chaussée au sein des Terrasses 1930, cet appartement T3 de 58,21 m² séduit par son exceptionnel jardin privatif de 166 m² et sa terrasse de 5,63 m², véritables atouts pour profiter d’un cadre de vie calme et verdoyant.

Un intérieur fonctionnel et lumineux :
Séjour / cuisine de 24,57 m², spacieux et baigné de lumière, idéal pour les moments de convivialité.

Deux chambres avec placards intégrés :
Chambre 1 : 10,45 m²
Chambre 2 : 10,86 m²
Grande salle de bains de 5,56 m², confortable et bien agencée
Hall d’entrée de 5,39 m²
Placard indépendant de 1,37 m², offrant un espace de rangement supplémentaire

Un extérieur rare :
Le jardin privatif de 166 m², prolongé par une terrasse, constitue un véritable espace de vie extérieur : repas en plein air, détente, jardinage ou jeux pour enfants.
Un emplacement privilégié
A 3 minutes à pied du centre-ville de Champagne-au-Mont-d’Or
Proximité immédiate des commerces, écoles et transports (bus, gare SNCF)
10 minutes en voiture de Lyon

Temps de trajet indicatifs :
Champagne-au-Mont-d’Or à Gare de Vaise : 10 min en bus (ligne 118) et 6 à 10 min en voiture
Champagne-au-Mont-d’Or à Gorge de Loup : 20 min en bus + métro et 10 à 15 min en voiture
Champagne-au-Mont-d’Or au Centre de Lyon
30 min en bus + métro et 10 à 15 min en voiture.

Les informations sur les risques auxquels ce bien est exposé sont disponibles sur le site Géorisques : www.georisques.gouv.fr

Contact : Sophie Riffaud 07/71/93/70/18

Copropriété de 4 lots – dont 4 lots habitation.(Pas de procédure en cours).

Résumé

  • Type Appartement
  • Chambres 2
  • Salle de bains 1
  • Surface 58 m²
  • Terrain 166 m²
  • Prix 370,000€

Détails

  • Référence 11963
  • Prix 370 000€
  • Honoraires 14800€
  • Les honoraires d'agence seront à la charge du vendeur
  • Nombre de pièces 3
  • Nombre de salles de bain 1
  • Nombre d'étages 1
  • Etat général Très bon état
  • Chauffage Individuel
  • Eau chaude ChauffeEau
  • Cuisine Ouverte
  • Copropriété Oui
  • Nombre de lots 4
  • Procédures non
  • Détails procédures pas de procédure en cours

Les plus

  • Climatisation
  • Fibre optique
  • Parking

Diagnostic énergétique du bien

DPE non communiqué Consommations non exploitables
* Dont émissions de gaz à effet de serre
GES non communiqué Consommations non exploitables

Géorisques

Les informations sur les risques auxquels ce bien est exposé sont disponibles sur le site Géorisques https://www.georisques.gouv.fr